10% ОТСТЪПКА ЗА ТЕРМОПОМПИ - С КОД GETWOLF ПРИ ПОКУПКА
10% ОТСТЪПКА ЗА ГАЗОВИ КОТЛИ - С КОД GETGASWOLF ПРИ ПОКУПКА
10% ОТСТЪПКА ЗА КОНВЕКТОРИ - С КОД GETMINIB ПРИ ПОКУПКА
- } Liquid error (snippets/header-snippet line 640): Could not find asset snippets/icon-account.liquid
- 0
- Начало
- Газови Котли
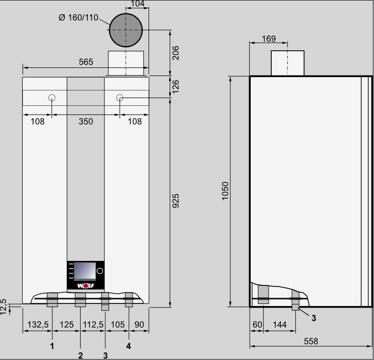
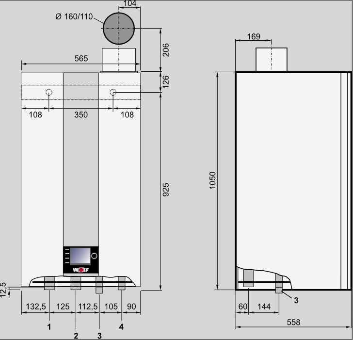
- Газов котел - кондензен CGB-2-75 Газов котел - кондензен CGB-2-75










Газов котел - кондензен CGB-2-75
- Описание
- Доставка и Връщане
- Отзиви
Газов котел - кондензен CGB-2-75
Създаден за справяне със сложни задачи:
Новият газов кондензационен котел на WOLF, CGB-2-75/100, монтиран на стена, е най-добрият избор за проекти с по-голям обем на изхода. Със съвременна технология за управление и ултра висококачествени компоненти, нашият котел за големи мащаби е идеалният избор за апартаментни блокове или комерсиални обекти. Той е водещ в своя сегмент на пазара, с максимална ефективност и без необходимост от преливен клапан. Голям котел, голяма универсалност, голямо представяне.

Въздух-вода топлови помпи CHA-Monoblock
или Газови кондензационни котли като CGB-2-38/55

Девет добри причини да изберете газовия кондензационен котел CGB-2-38/55:
1. Изключителна ефективност: Осигурява оптимална ефективност при отопление и гореща вода.
2. Висока надеждност: Построен с висококачествени материали и компоненти за дълготрайна работа.
3. Икономичност: Предлага икономична експлоатация и намалени разходи за енергия.
4. Представяне без преливен клапан: Обезпечава безпроблемна работа без необходимост от преливен клапан.
5. Компактен дизайн: Подходящ за монтаж на стена, пестейки пространство.
6. Високо ниво на контрол: Има съвременна технология за управление за оптимално функциониране.
7. Подходящ за различни проекти: Подходящ за разнообразни обекти като апартаментни блокове и търговски сгради.
8. Лесна инсталация и обслужване: Проектиран за бърза и лесна инсталация и обслужване.
9. Превъзходно представяне: Предлага изключително качество на работа и надеждност в дългосрочен план.
Безпрецедентна ефективност
Изключително сезонно централно отоплително ефективност (ηs) от 95%. Уредът също разполага с изключително висок обхват на модулация от 1:6 и може да бъде регулиран до 16% от своята оценена мощност - идеален в периоди на ниско търсене.
Най-новата технология за управление на WOLF
Благодарение на системата за управление на WOLF 2 (WRS-2), новата модерна система за управление е оборудвана с общ сензор за температура за нископротичащ се колектор. Системата също може да бъде поддържана отдалечено и удобно чрез интернет интерфейса WOLF Link pro (версия 4G включително рутер).
Много възможни приложения
Каскади от до пет уреда са подходящи за широка гама от приложения и осигуряват до 500 kW изходна мощност. Регулаторите за връщане на отработените газове за каскадите на отработените газове са включени като стандартно оборудване. Като котел за пиково натоварване в хибридна система с топлови помпи, могат да бъдат покрити различни нужди - например в апартаментни сгради или хотели.
Изключителна дълготрайност
Покритият топлообменник, изработен от екструдиран AlSi, е оптимизиран за своята изходна мощност и разполага с голям брой ребра за изключителен топлопренос. Изтънченият дизайн включва система за сензор за температурата на отработените газове, капак на горивната камера с вермикулитова изолация, автоматичен вентил за отдушаване и много други здрави компоненти за максимална надеждност и дълготрайност.
Изтънчен дизайн на контролната система
Контролната система е преработена от основа, за да се оптимизира достъпността на всеки контролен конектор и компонент. Всички платки са включени в една обща конструкция заедно с опционалния модул WOLF Link home или I/O. Интегрирани кабелни канали за удобен достъп по време на монтаж и поддръжка.
Монтаж и въвеждане в експлоатация - бързо и лесно
Няма минимално странично разстояние, връзки, които са 100% съвместими с предходния модел и лесната промяна към природен газ LL / LPG правят този уред лесен за използване в котелна. Помощникът при въвеждане в експлоатацията в програмния блок BM-2 идентифицира компонентите на WOLF и насочва потребителя директно и успешно през конфигурацията.
Поддръжката е направена лесна
CGB-2-75/100 е напълно достъпен отпред и отгоре. Тестовете на отработените газове могат да се извършват отвън, което прави уреда особено лесен за поддръжка. Всички почиствания се извършват при системно налягане. WOLF работи тясно с контрактори по време на разработването на устройството, за да направи всички съответни компоненти възможно най-достъпни.
Системата за управление на части на WOLF
Характерните и всеобхватни аксесоари на WOLF (например сглобяеми помпи, ниски загуби на топлина за отделни устройства или каскади, системи за отработени газове) и системата за управление на резервни части пълноценно допълват функциите. Много части се споделят с други уреди на WOLF, което намалява изискванията за складиране за търговските партньори и намалява грешките при смесване.
По-тих от всички други и в съвременния дизайн на WOLF
Благодарение на оптимизираната изолация, уредът е само на 47 dB(A)* и е най-тихият на пазара. "Нашето голямо котле" изглежда впечатляващо в новия, привлекателен дизайн на WOLF със сребърни линии. *CGB-2-75
Общи условия на ползване
-
Приемане на условията:
- Посещавайки и използвайки нашия уебсайт, вие изразявате съгласието си с настоящите Общи условия на ползване. Ако не сте съгласни с тези условия, моля, не продължавайте да използвате нашия уебсайт.
-
Ползване на уебсайта:
- Нашият уебсайт е предназначен за лична и некомерсиална употреба. Вие се съгласявате да не използвате уебсайта за незаконни или забранени цели.
-
Регистрация на акаунт:
- За да използвате определени функции на уебсайта, може да бъде необходимо да създадете акаунт. Вие се съгласявате да предоставите точна и пълна информация при създаването на акаунт и да актуализирате тази информация, когато е необходимо.
-
Защита на информацията:
- Вие носите отговорността за сигурността на вашето потребителско име и парола за достъп до вашия акаунт. Не разкривайте тези данни на трети лица и предприемайте необходимите мерки за защита на вашата лична информация.
-
Интелектуална собственост:
- Всички материали, публикувани на нашия уебсайт, включително текстове, графики, лога, изображения и софтуер, са собственост на "ЕЪР ЛУКС СИСТЕМИ ЕООД" или нашите лицензодатели и са защитени от авторски права.
- Използването, копирането или разпространението на тези материали без разрешение е забранено.
-
Поръчки и плащания:
- Поръчките, направени чрез нашия уебсайт, се считат за предложение за закупуване на стоки и подлежат на приемане от наша страна.
- Вие се съгласявате да плащате всички суми, свързани със закупените от вас стоки, и да осигурите валидна плащателна информация.
-
Отказ от отговорност:
- Въпреки че правим всичко възможно, за да осигурим точността на информацията, публикувана на нашия уебсайт, не поемаме отговорност за евентуални грешки или липси в тази информация.
- Ние си запазваме правото да променяме цените на стоките, да променяме наличността на стоките и да променяме Общите условия на ползване по всяко време без предизвестие.
-
Промени в условията:
- Ние запазваме правото си да променяме или актуализираме настоящите Общи условия на ползване по всяко време. Всяка промяна ще бъде публикувана на този уебсайт.
- Продължавайки да използвате нашия уебсайт след такива промени, вие се съгласявате с новите Общи условия на ползване.
Ако имате въпроси относно нашите Общи условия на ползване или как да използвате нашия уебсайт, моля, свържете се с нас. Благодарим ви за доверието.